町有千代田住宅入居者募集(随時)
北広島町有千代田住宅 入居者募集のお知らせ (随時募集)
空き室状況
| No | 号棟名 | 階 | 規模 | 家賃 | 募集戸数 | 備考 |
|---|---|---|---|---|---|---|
| 1 | 1号棟 | 1 | 3DK | 29,000円 | 1戸 | |
| 2 | 1号棟 | 2 | 3DK | 30,000円 | 1戸 | |
| 3 | 1号棟 | 3 | 3DK | 29,000円 | 1戸 | |
| 4 | 2号棟 | 1 | 3DK | 29,000円 | 1戸 | |
| 5 | 2号棟 | 3 | 3DK | 29,000円 | 1戸 |
住宅の所在地
〒731-1531
北広島町春木1383番地1 (1号棟、2号棟)
北広島町春木1376番地2 (3号棟)

建物の概要
外観

構造
鉄筋コンクリート5階建て 3棟 120戸 (1棟40戸)
1号棟・2号棟 (昭和63年築) 3号棟 (平成9年築)
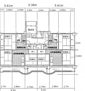
間取り
3Dk 53.08平方メートル(和室6畳2部屋・和室4畳半1部屋・Dk・浴室・洗面・トイレ)
【間取り例】

玄関
部屋
部屋
部屋
キッチン
キッチン
押入れ
押入れ
風呂
風呂
トイレ
洗面所
家賃等 (月額)
家賃
1階:29,000円 2階:30,000円 3階:29,000円 4階:28,000円 5階:26,000円
※家賃は前払いです。
共益費等
共益費 : 800円
ちゅピComサービス費:1,650円
注1)ちゅピComサービスの内容は、テレビ視聴+インターネット光500M+音声告知放送です。
利用の有無にかかわらず、費用が発生します。
注2)ちゅピCom光サービスの上記以外の追加コンテンツ等(インターネット1G増設・多チャンネル等)は別途個別に契約が必要です。
詳しい内容は、株式会社ちゅピComへご確認ください。
駐車場
2,200円 (1台につき)
敷金
家賃・駐車場使用料2か月分
申込に必要な書類
- 北広島町有千代田住宅入居申込書
- 入居資格調査承諾書
- 住民票(世帯全員・本籍地、続柄の記載のあるもの)
- 所得証明書(世帯全員)
- 市町村民税納税証明書(世帯全員)
- 健康保険証のコピー(世帯全員)
- 北広島町有千代田住宅駐車場使用許可申請書
(駐車場を申し込む方のみ、申請台数ごとに申請書を提出してください。) - 契約者の印鑑証明書
- 緊急連絡先になる方の印鑑証明書(1部)
※入居申込をするには、入居者資格を満たしていなければなりません。
※当該住宅は企業借上げが可能です。(町内に事業所を持つ事業者のみ)
詳しくは本庁 建設課 都市管理係までお問い合わせください。
入居者資格
- 町内に住民登録を有している者、もしくは住民登録をする者
- 独立した生計を営み、申請者の年収(賞与及び利子所得等で継続的な収入を含む)の12分の1の額が入居希望町有住宅の家賃と共益費をあわせた額の3倍以上であること。
- 地方税を滞納していないこと。
- 入居者または同居者が暴力団員による不当な行為の防止等に関する法律(平成3年法律第77号)第2条第6号に規定する者(以下「暴力団員」という)でないこと。
入居の手続き
「申込に必要な書類」を建設課へご提出いただきます。書類の内容を審査して入居者として決定した場合は、宅入居決定通知書・契約書・敷金の納付書などをお送りします。この通知があった日から10日以内に敷金の納付及び契約書提出等の手続きを行ってください。
すべての手続きが終わりましたら、現地にて入居立会を行います。入居前の部屋の最終確認を行っていただき、問題なければ入居していただきます。その際に部屋の鍵をお渡しすることになります。家賃は鍵をお渡しした日から発生し、日割り計算で納付していただきます。
その他
- 入居決定後の手続きを期限内にされない場合は、入居決定を取り消すことがあります。
- 住民票の異動は、入居決定後に手続きをしてください。
- 住宅使用料(家賃+共益費+駐車場代)のお支払いは原則として、口座振替でお支払いとなります。
- 住宅使用料を3ヵ月以上滞納した場合は、退去していただきます。
- 退去時には、入居期間・汚れの有無などに関係なく、入居者に、すべての畳の表替え及び襖の張替えをしていただきます
- 自治会の活動で、階段・ゴミ捨て場の掃除、草刈りなどの当番活動があります。
- ゴミ収集日を事前にご確認ください。収集日以外の日にはゴミを出さないでください。
- 車を駐車される場合は、自分の契約駐車スペースに駐車してください。
- 構内は駐車禁止となっていますので、構内に駐車しないでください。
- 外来者が駐車する場合は、お客様駐車場スペースを利用してください。
- 自転車、バイク等は決められた駐輪場に駐輪してください。
- 住宅内でペット(犬・猫・鳥など)を飼育することはできません。
- 構内や敷地内へのタバコ、空き缶、ペットボトル、ゴミ等のポイ捨てをしないでください。
- 非常ベルに誤って触ることのないようにしてください。
- 夜間(特に21時以降)には、お静かにお願いします。
各種申請書等ダウンロード
入居時
北広島町有千代田住宅入居要項 [PDFファイル/174KB]
北広島町有千代田住宅入居申込書 [PDFファイル/83KB]
確約書 [PDFファイル/21KB]
入居資格調査承諾書 [PDFファイル/75KB]
入居資格調査承諾書記入要領 [PDFファイル/93KB]
北広島町有千代田住宅駐車場使用許可申請書 [PDFファイル/98KB]
北広島町有千代田住宅駐車場使用許可申請書記入要領[PDFファイル/145KB]
各種変更時
北広島町有千代田住宅同居承認申請書 [PDFファイル/107KB]
北広島町有千代田住宅同居者異動届 [PDFファイル/93KB]
北広島町有千代田住宅入居承継承認申請書 [PDFファイル/107KB]
北広島町有千代田住宅滅失・損傷報告書 [PDFファイル/85KB]
北広島町有千代田住宅長期不在届出書 (A4-1p)[PDFファイル/84KB]
北広島町有千代田住宅模様替え承認申請書 (A4-1p)[PDFファイル/111KB]
退去時
北広島町有千代田住宅明渡届 [PDFファイル/89KB]
北広島町有千代田住宅駐車場返還届出書 [PDFファイル/88KB]
北広島町有千代田敷金還付依頼書 [PDFファイル/98KB]











